ГОСТ Р 72002-2025 Фильтры очистки воздуха общего назначения. Испытания установленных фильтров и фильтрующих систем в условиях применения для определения эффективности улавливания частиц заданного размера и перепада давления

Категории ГОСТ Р 72002-2025 по ОКС:
Статус документа:
принят, введён в действие 01.01.2026
Название на английском языке:
Air filters for general ventilation. Field testing of general ventilation filtration devices and systems for in situ removal efficiency by particle size and resistance to airflow
Дата актуализации информации по стандарту:
27.08.2025, в 18:23 (менее 3 месяцев назад)
Вид стандарта:
временно не известен
Дата начала действия ГОСТа:
2026-01-01
Число страниц:
46
Назначение ГОСТ Р 72002-2025:
не указано
Нормативные ссылки, связанные с ГОСТ Р 72002-2025:

Скачать ГОСТ Р 72002-2025 вы можете в следующих версиях:

В данный момент версий документа для скачивания не добавлено.

Мы стараемся пополнять базу документов еженедельно и из разных источников, в обозримом будущем версии для этого ГОСТа появятся.

Вы можете просмотреть online текст стандарта ГОСТ Р 72002-2025

Просмотреть текст ГОСТ Р 72002-2025

Текст стандарта

  • ГОСТ Р 72002-2025, страница 1 страница 1
  • ГОСТ Р 72002-2025, страница 2 страница 2
  • ГОСТ Р 72002-2025, страница 3 страница 3
  • ГОСТ Р 72002-2025, страница 4 страница 4
  • ГОСТ Р 72002-2025, страница 5 страница 5
  • ГОСТ Р 72002-2025, страница 6 страница 6
  • ГОСТ Р 72002-2025, страница 7 страница 7
  • ГОСТ Р 72002-2025, страница 8 страница 8
  • ГОСТ Р 72002-2025, страница 9 страница 9
  • ГОСТ Р 72002-2025, страница 10 страница 10
  • ГОСТ Р 72002-2025, страница 11 страница 11
  • ГОСТ Р 72002-2025, страница 12 страница 12
  • ГОСТ Р 72002-2025, страница 13 страница 13
  • ГОСТ Р 72002-2025, страница 14 страница 14
  • ГОСТ Р 72002-2025, страница 15 страница 15
  • ГОСТ Р 72002-2025, страница 16 страница 16
  • ГОСТ Р 72002-2025, страница 17 страница 17
  • ГОСТ Р 72002-2025, страница 18 страница 18
  • ГОСТ Р 72002-2025, страница 19 страница 19
  • ГОСТ Р 72002-2025, страница 20 страница 20
  • ГОСТ Р 72002-2025, страница 21 страница 21
  • ГОСТ Р 72002-2025, страница 22 страница 22
  • ГОСТ Р 72002-2025, страница 23 страница 23
  • ГОСТ Р 72002-2025, страница 24 страница 24
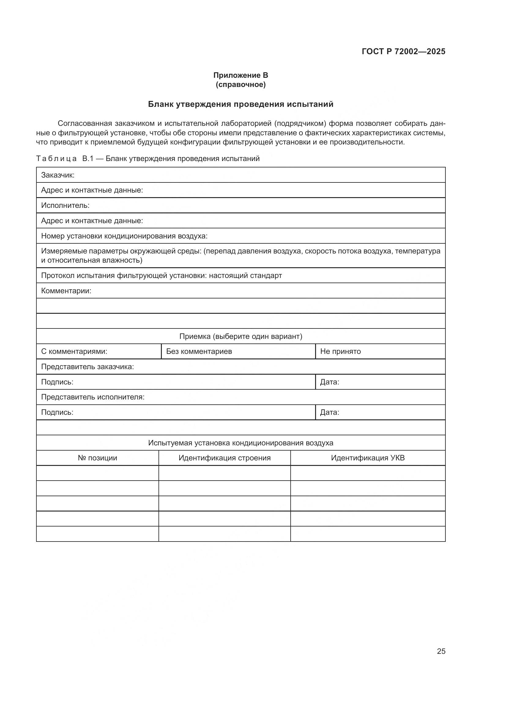
  • ГОСТ Р 72002-2025, страница 25 страница 25
  • ГОСТ Р 72002-2025, страница 26 страница 26
  • ГОСТ Р 72002-2025, страница 27 страница 27
  • ГОСТ Р 72002-2025, страница 28 страница 28
  • ГОСТ Р 72002-2025, страница 29 страница 29
  • ГОСТ Р 72002-2025, страница 30 страница 30
  • ГОСТ Р 72002-2025, страница 31 страница 31
  • ГОСТ Р 72002-2025, страница 32 страница 32
  • ГОСТ Р 72002-2025, страница 33 страница 33
  • ГОСТ Р 72002-2025, страница 34 страница 34
  • ГОСТ Р 72002-2025, страница 35 страница 35
  • ГОСТ Р 72002-2025, страница 36 страница 36
  • ГОСТ Р 72002-2025, страница 37 страница 37
  • ГОСТ Р 72002-2025, страница 38 страница 38
  • ГОСТ Р 72002-2025, страница 39 страница 39
  • ГОСТ Р 72002-2025, страница 40 страница 40
  • ГОСТ Р 72002-2025, страница 41 страница 41
  • ГОСТ Р 72002-2025, страница 42 страница 42
  • ГОСТ Р 72002-2025, страница 43 страница 43
  • ГОСТ Р 72002-2025, страница 44 страница 44
  • ГОСТ Р 72002-2025, страница 45 страница 45
  • ГОСТ Р 72002-2025, страница 46 страница 46