ГОСТ Р 56200-2014 Научное руководство и авторский надзор при проведении работ по сохранению объектов культурного наследия. Основные положения

Категории ГОСТ Р 56200-2014 по ОКС:
Статус документа:
действует, введён в действие 01.02.2015
Название на английском языке:
The scientific management and architectural supervision at work on preservation of objects of a cultural heritage. Basic provisions
Дата актуализации информации по стандарту:
11.08.2025, в 13:28 (менее 3 месяцев назад)
Вид стандарта:
временно не известен
Дата начала действия ГОСТа:
2015-02-01
Число страниц:
12
Назначение ГОСТ Р 56200-2014:
не указано
Нормативные ссылки, связанные с ГОСТ Р 56200-2014:

Скачать ГОСТ Р 56200-2014 вы можете в следующих версиях:

Дата добавления:
Тип файла:
Загрузок:
Размер:
23/01/2016 01:46
PDF с изображениями
0
0.68 Мб

Текст стандарта

  • ГОСТ Р 56200-2014, страница 1 страница 1
  • ГОСТ Р 56200-2014, страница 2 страница 2
  • ГОСТ Р 56200-2014, страница 3 страница 3
  • ГОСТ Р 56200-2014, страница 4 страница 4
  • ГОСТ Р 56200-2014, страница 5 страница 5
  • ГОСТ Р 56200-2014, страница 6 страница 6
  • ГОСТ Р 56200-2014, страница 7 страница 7
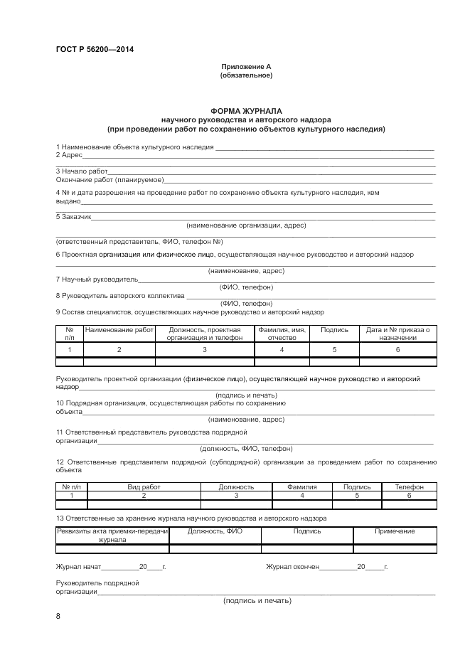
  • ГОСТ Р 56200-2014, страница 8 страница 8
  • ГОСТ Р 56200-2014, страница 9 страница 9
  • ГОСТ Р 56200-2014, страница 10 страница 10
  • ГОСТ Р 56200-2014, страница 11 страница 11
  • ГОСТ Р 56200-2014, страница 12 страница 12