ГОСТ 34347-2017 Сосуды и аппараты стальные сварные. Общие технические условия

Категории ГОСТ 34347-2017 по ОКС:
Статус документа:
действует, введён в действие 01.08.2018
Название на английском языке:
Steel welded vessels and apparatus. General specifications
Дата актуализации информации по стандарту:
19.06.2025, в 14:05 (менее полугода назад)
Вид стандарта:
Стандарты на продукцию (услуги)
Дата начала действия ГОСТа:
2018-08-01
Дата последнего издания документа:
2018-02-13
Коды документа ГОСТ 34347-2017:
Код ОКП:
360000
Код КГС:
Г40
Число страниц:
112
Назначение ГОСТ 34347-2017:
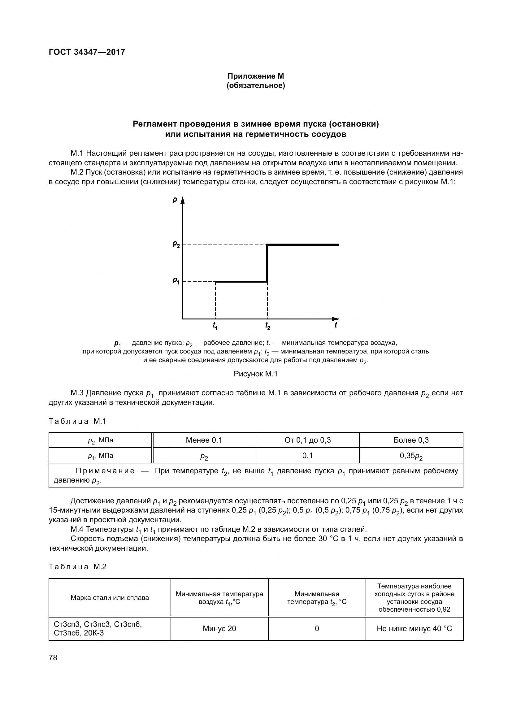
Настоящий стандарт распространяется на стальные сварные сосуды и аппараты (далее - сосуды), работающие под избыточным давлением, вакуумом с остаточным давлением не ниже 665 Па (5 мм рт. ст.) или без давления (под налив), предназначенные для применения в технологических установках химической, нефтехимической, нефтеперерабатывающей, газоперерабатывающей, нефтяной, газовой и других отраслях промышленности и рассчитываемые на прочность по ГОСТ 34233.1 - ГОСТ 34233.12, ГОСТ 34283. Настоящий стандарт устанавливает основные технические требования к конструкции, материалам, изготовлению (доизготовлению), методам испытаний, приемке и поставке, реконструкции, ремонту, монтажу сосудов и аппаратов. Настоящий стандарт не распространяется на: - сосуды, работающие под вакуумом с остаточным давлением ниже 665 Па (5 мм рт. ст.); - сосуды, предназначенные для транспортирования нефтяных и химических продуктов; - баллоны для сжатых, сжиженных и растворенных газов; - трубчатые печи; - резервуары (емкости) для хранения химических и нефтяных продуктов, проек- тируемые в соответствии со строительными нормами и специальными правилами. В дополнение к требованиям настоящего стандарта необходимо руководствоваться нормативными документами в области промышленной безопасности государств, упомянутых в предисловии как проголосовавших за принятие межгосударственного стандарта
Документ разработан орг-ей:
Федеральное агентство по техническому регулированию и метрологии (Росстандарт)
Документ принят орг-ей:
Межгосударственный Совет по стандартизации метрологии и сертификации, протокол №52-2017
Ключевые слова документа:
аппараты, гидроиспытание, марки сталей и сплавов, пробное давление, прочность, сосуды, температура стенки, трубы
Нормативные ссылки, связанные с ГОСТ 34347-2017:

Скачать ГОСТ 34347-2017 вы можете в следующих версиях:

В данный момент версий документа для скачивания не добавлено.

Мы стараемся пополнять базу документов еженедельно и из разных источников, в обозримом будущем версии для этого ГОСТа появятся.

Вы можете просмотреть online текст стандарта ГОСТ 34347-2017

Просмотреть текст ГОСТ 34347-2017

Текст стандарта

  • ГОСТ 34347-2017, страница 1 страница 1
  • ГОСТ 34347-2017, страница 2 страница 2
  • ГОСТ 34347-2017, страница 3 страница 3
  • ГОСТ 34347-2017, страница 4 страница 4
  • ГОСТ 34347-2017, страница 5 страница 5
  • ГОСТ 34347-2017, страница 6 страница 6
  • ГОСТ 34347-2017, страница 7 страница 7
  • ГОСТ 34347-2017, страница 8 страница 8
  • ГОСТ 34347-2017, страница 9 страница 9
  • ГОСТ 34347-2017, страница 10 страница 10
  • ГОСТ 34347-2017, страница 11 страница 11
  • ГОСТ 34347-2017, страница 12 страница 12
  • ГОСТ 34347-2017, страница 13 страница 13
  • ГОСТ 34347-2017, страница 14 страница 14
  • ГОСТ 34347-2017, страница 15 страница 15
  • ГОСТ 34347-2017, страница 16 страница 16
  • ГОСТ 34347-2017, страница 17 страница 17
  • ГОСТ 34347-2017, страница 18 страница 18
  • ГОСТ 34347-2017, страница 19 страница 19
  • ГОСТ 34347-2017, страница 20 страница 20
  • ГОСТ 34347-2017, страница 21 страница 21
  • ГОСТ 34347-2017, страница 22 страница 22
  • ГОСТ 34347-2017, страница 23 страница 23
  • ГОСТ 34347-2017, страница 24 страница 24
  • ГОСТ 34347-2017, страница 25 страница 25
  • ГОСТ 34347-2017, страница 26 страница 26
  • ГОСТ 34347-2017, страница 27 страница 27
  • ГОСТ 34347-2017, страница 28 страница 28
  • ГОСТ 34347-2017, страница 29 страница 29
  • ГОСТ 34347-2017, страница 30 страница 30
  • ГОСТ 34347-2017, страница 31 страница 31
  • ГОСТ 34347-2017, страница 32 страница 32
  • ГОСТ 34347-2017, страница 33 страница 33
  • ГОСТ 34347-2017, страница 34 страница 34
  • ГОСТ 34347-2017, страница 35 страница 35
  • ГОСТ 34347-2017, страница 36 страница 36
  • ГОСТ 34347-2017, страница 37 страница 37
  • ГОСТ 34347-2017, страница 38 страница 38
  • ГОСТ 34347-2017, страница 39 страница 39
  • ГОСТ 34347-2017, страница 40 страница 40
  • ГОСТ 34347-2017, страница 41 страница 41
  • ГОСТ 34347-2017, страница 42 страница 42
  • ГОСТ 34347-2017, страница 43 страница 43
  • ГОСТ 34347-2017, страница 44 страница 44
  • ГОСТ 34347-2017, страница 45 страница 45
  • ГОСТ 34347-2017, страница 46 страница 46
  • ГОСТ 34347-2017, страница 47 страница 47
  • ГОСТ 34347-2017, страница 48 страница 48
  • ГОСТ 34347-2017, страница 49 страница 49
  • ГОСТ 34347-2017, страница 50 страница 50
  • ГОСТ 34347-2017, страница 51 страница 51
  • ГОСТ 34347-2017, страница 52 страница 52
  • ГОСТ 34347-2017, страница 53 страница 53
  • ГОСТ 34347-2017, страница 54 страница 54
  • ГОСТ 34347-2017, страница 55 страница 55
  • ГОСТ 34347-2017, страница 56 страница 56
  • ГОСТ 34347-2017, страница 57 страница 57
  • ГОСТ 34347-2017, страница 58 страница 58
  • ГОСТ 34347-2017, страница 59 страница 59
  • ГОСТ 34347-2017, страница 60 страница 60
  • ГОСТ 34347-2017, страница 61 страница 61
  • ГОСТ 34347-2017, страница 62 страница 62
  • ГОСТ 34347-2017, страница 63 страница 63
  • ГОСТ 34347-2017, страница 64 страница 64
  • ГОСТ 34347-2017, страница 65 страница 65
  • ГОСТ 34347-2017, страница 66 страница 66
  • ГОСТ 34347-2017, страница 67 страница 67
  • ГОСТ 34347-2017, страница 68 страница 68
  • ГОСТ 34347-2017, страница 69 страница 69
  • ГОСТ 34347-2017, страница 70 страница 70
  • ГОСТ 34347-2017, страница 71 страница 71
  • ГОСТ 34347-2017, страница 72 страница 72
  • ГОСТ 34347-2017, страница 73 страница 73
  • ГОСТ 34347-2017, страница 74 страница 74
  • ГОСТ 34347-2017, страница 75 страница 75
  • ГОСТ 34347-2017, страница 76 страница 76
  • ГОСТ 34347-2017, страница 77 страница 77
  • ГОСТ 34347-2017, страница 78 страница 78
  • ГОСТ 34347-2017, страница 79 страница 79
  • ГОСТ 34347-2017, страница 80 страница 80
  • ГОСТ 34347-2017, страница 81 страница 81
  • ГОСТ 34347-2017, страница 82 страница 82
  • ГОСТ 34347-2017, страница 83 страница 83
  • ГОСТ 34347-2017, страница 84 страница 84
  • ГОСТ 34347-2017, страница 85 страница 85
  • ГОСТ 34347-2017, страница 86 страница 86
  • ГОСТ 34347-2017, страница 87 страница 87
  • ГОСТ 34347-2017, страница 88 страница 88
  • ГОСТ 34347-2017, страница 89 страница 89
  • ГОСТ 34347-2017, страница 90 страница 90
  • ГОСТ 34347-2017, страница 91 страница 91
  • ГОСТ 34347-2017, страница 92 страница 92
  • ГОСТ 34347-2017, страница 93 страница 93
  • ГОСТ 34347-2017, страница 94 страница 94
  • ГОСТ 34347-2017, страница 95 страница 95
  • ГОСТ 34347-2017, страница 96 страница 96
  • ГОСТ 34347-2017, страница 97 страница 97
  • ГОСТ 34347-2017, страница 98 страница 98
  • ГОСТ 34347-2017, страница 99 страница 99
  • ГОСТ 34347-2017, страница 100 страница 100
  • ГОСТ 34347-2017, страница 101 страница 101
  • ГОСТ 34347-2017, страница 102 страница 102
  • ГОСТ 34347-2017, страница 103 страница 103
  • ГОСТ 34347-2017, страница 104 страница 104
  • ГОСТ 34347-2017, страница 105 страница 105
  • ГОСТ 34347-2017, страница 106 страница 106
  • ГОСТ 34347-2017, страница 107 страница 107
  • ГОСТ 34347-2017, страница 108 страница 108
  • ГОСТ 34347-2017, страница 109 страница 109
  • ГОСТ 34347-2017, страница 110 страница 110
  • ГОСТ 34347-2017, страница 111 страница 111
  • ГОСТ 34347-2017, страница 112 страница 112