ГОСТ 34022-2016 Краны грузоподъемные. Эксплуатационные документы

Категории ГОСТ 34022-2016 по ОКС:
Статус документа:
действует, введён в действие 01.01.2018
Название на английском языке:
Cranes. Operational documents
Дата актуализации информации по стандарту:
29.10.2025, в 15:41 (менее 3 месяцев назад)
Вид стандарта:
Стандарты на продукцию (услуги)
Дата начала действия ГОСТа:
2018-01-01
Дата последнего издания документа:
2017-04-21
Число страниц:
82
Назначение ГОСТ 34022-2016:
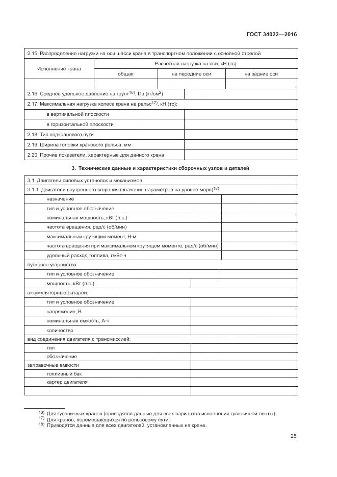
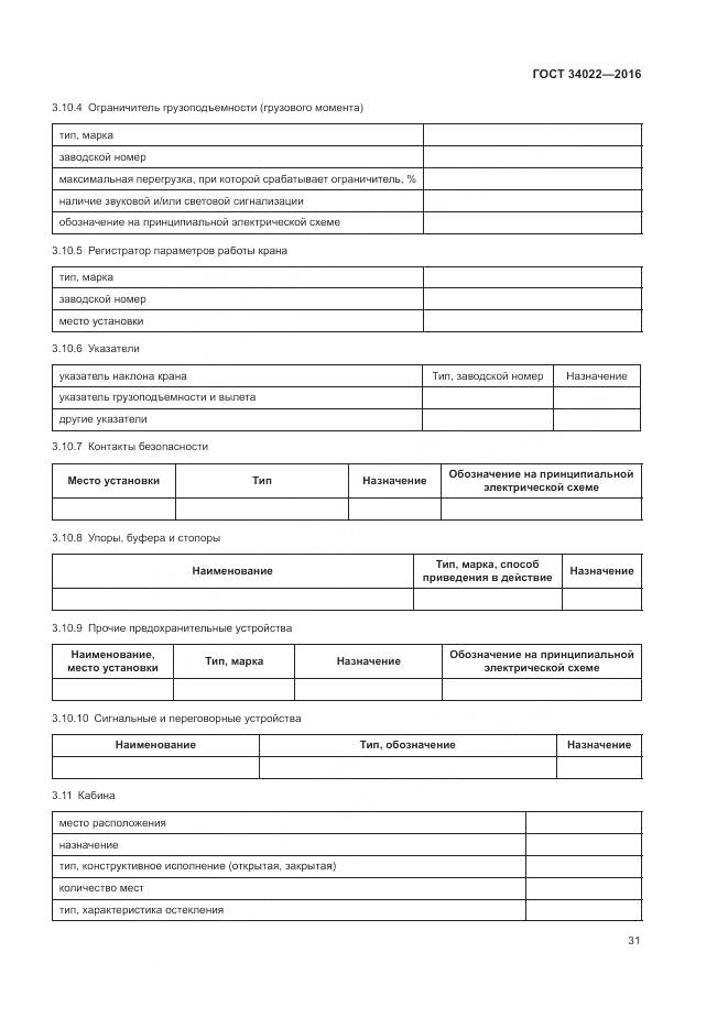
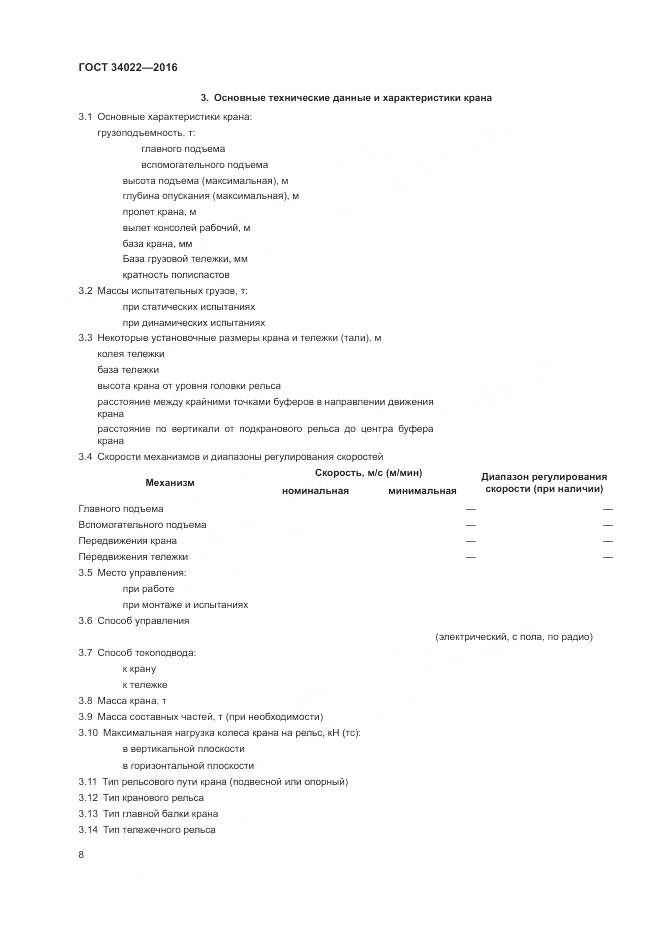
Настоящий стандарт устанавливает требования к номенклатуре, содержанию и форме документов, которые должен представить изготовитель вместе с грузоподъемными кранами
Документ разработан орг-ей:
Федеральное агентство по техническому регулированию и метрологии (Росстандарт)
Документ принят орг-ей:
Межгосударственный Совет по стандартизации метрологии и сертификации, протокол №93-П
Ключевые слова документа:
краны грузоподъемные, паспорт, руководство по эксплуатации, эксплуатационные документы

Скачать ГОСТ 34022-2016 вы можете в следующих версиях:

Тип файла:
Дата добавления:
Загрузок:
Размер:
Тип файла:
PDF с изображениями
Добавлен:
20/11/2025 15:08
Скачиваний:
12
Размер файла:
3.94 Мб
  • ГОСТ 34022-2016, страница 1 страница 1
  • ГОСТ 34022-2016, страница 2 страница 2
  • ГОСТ 34022-2016, страница 3 страница 3
  • ГОСТ 34022-2016, страница 4 страница 4
  • ГОСТ 34022-2016, страница 5 страница 5
  • ГОСТ 34022-2016, страница 6 страница 6
  • ГОСТ 34022-2016, страница 7 страница 7
  • ГОСТ 34022-2016, страница 8 страница 8
  • ГОСТ 34022-2016, страница 9 страница 9
  • ГОСТ 34022-2016, страница 10 страница 10
  • ГОСТ 34022-2016, страница 11 страница 11
  • ГОСТ 34022-2016, страница 12 страница 12
  • ГОСТ 34022-2016, страница 13 страница 13
  • ГОСТ 34022-2016, страница 14 страница 14
  • ГОСТ 34022-2016, страница 15 страница 15
  • ГОСТ 34022-2016, страница 16 страница 16
  • ГОСТ 34022-2016, страница 17 страница 17
  • ГОСТ 34022-2016, страница 18 страница 18
  • ГОСТ 34022-2016, страница 19 страница 19
  • ГОСТ 34022-2016, страница 20 страница 20
  • ГОСТ 34022-2016, страница 21 страница 21
  • ГОСТ 34022-2016, страница 22 страница 22
  • ГОСТ 34022-2016, страница 23 страница 23
  • ГОСТ 34022-2016, страница 24 страница 24
  • ГОСТ 34022-2016, страница 25 страница 25
  • ГОСТ 34022-2016, страница 26 страница 26
  • ГОСТ 34022-2016, страница 27 страница 27
  • ГОСТ 34022-2016, страница 28 страница 28
  • ГОСТ 34022-2016, страница 29 страница 29
  • ГОСТ 34022-2016, страница 30 страница 30
  • ГОСТ 34022-2016, страница 31 страница 31
  • ГОСТ 34022-2016, страница 32 страница 32
  • ГОСТ 34022-2016, страница 33 страница 33
  • ГОСТ 34022-2016, страница 34 страница 34
  • ГОСТ 34022-2016, страница 35 страница 35
  • ГОСТ 34022-2016, страница 36 страница 36
  • ГОСТ 34022-2016, страница 37 страница 37
  • ГОСТ 34022-2016, страница 38 страница 38
  • ГОСТ 34022-2016, страница 39 страница 39
  • ГОСТ 34022-2016, страница 40 страница 40
  • ГОСТ 34022-2016, страница 41 страница 41
  • ГОСТ 34022-2016, страница 42 страница 42
  • ГОСТ 34022-2016, страница 43 страница 43
  • ГОСТ 34022-2016, страница 44 страница 44
  • ГОСТ 34022-2016, страница 45 страница 45
  • ГОСТ 34022-2016, страница 46 страница 46
  • ГОСТ 34022-2016, страница 47 страница 47
  • ГОСТ 34022-2016, страница 48 страница 48
  • ГОСТ 34022-2016, страница 49 страница 49
  • ГОСТ 34022-2016, страница 50 страница 50
  • ГОСТ 34022-2016, страница 51 страница 51
  • ГОСТ 34022-2016, страница 52 страница 52
  • ГОСТ 34022-2016, страница 53 страница 53
  • ГОСТ 34022-2016, страница 54 страница 54
  • ГОСТ 34022-2016, страница 55 страница 55
  • ГОСТ 34022-2016, страница 56 страница 56
  • ГОСТ 34022-2016, страница 57 страница 57
  • ГОСТ 34022-2016, страница 58 страница 58
  • ГОСТ 34022-2016, страница 59 страница 59
  • ГОСТ 34022-2016, страница 60 страница 60
  • ГОСТ 34022-2016, страница 61 страница 61
  • ГОСТ 34022-2016, страница 62 страница 62
  • ГОСТ 34022-2016, страница 63 страница 63
  • ГОСТ 34022-2016, страница 64 страница 64
  • ГОСТ 34022-2016, страница 65 страница 65
  • ГОСТ 34022-2016, страница 66 страница 66
  • ГОСТ 34022-2016, страница 67 страница 67
  • ГОСТ 34022-2016, страница 68 страница 68
  • ГОСТ 34022-2016, страница 69 страница 69
  • ГОСТ 34022-2016, страница 70 страница 70
  • ГОСТ 34022-2016, страница 71 страница 71
  • ГОСТ 34022-2016, страница 72 страница 72
  • ГОСТ 34022-2016, страница 73 страница 73
  • ГОСТ 34022-2016, страница 74 страница 74
  • ГОСТ 34022-2016, страница 75 страница 75
  • ГОСТ 34022-2016, страница 76 страница 76
  • ГОСТ 34022-2016, страница 77 страница 77
  • ГОСТ 34022-2016, страница 78 страница 78
  • ГОСТ 34022-2016, страница 79 страница 79
  • ГОСТ 34022-2016, страница 80 страница 80
  • ГОСТ 34022-2016, страница 81 страница 81
  • ГОСТ 34022-2016, страница 82 страница 82