ГОСТ 32414-2013 Трубы и фасонные части из полипропилена для систем внутренней канализации. Технические условия

Категории ГОСТ 32414-2013 по ОКС:
Статус документа:
действует, введён в действие 01.01.2015
Название на английском языке:
Polypropylene pipes and fittings for waste discharge inside the buildings. Specifications
Дата актуализации информации по стандарту:
23.10.2025, в 11:26 (менее 3 месяцев назад)
Вид стандарта:
Основополагающие стандарты
Дата начала действия ГОСТа:
2015-01-01
Дата последнего издания документа:
2016-03-23
Коды документа ГОСТ 32414-2013:
Код КГС:
Ж21
Число страниц:
32
Назначение ГОСТ 32414-2013:
Настоящий стандарт распространяется на трубы и фасонные части из полипропилена со сплошной стенкой, предназначенные для канализационных систем отвода бытовых сточных вод и ливневой канализации внутри зданий
Документ разработан орг-ей:
Федеральное агентство по техническому регулированию и метрологии (Росстандарт)
Документ принят орг-ей:
Межгосударственный Совет по стандартизации метрологии и сертификации, протокол №44-2013
Ключевые слова документа:
внутренняя канализация, методы испытаний, полипропилен, правила приемки, размеры, технические требования, трубы, фасонные части, фитинги

Скачать ГОСТ 32414-2013 вы можете в следующих версиях:

Тип файла:
Дата добавления:
Загрузок:
Размер:
Тип файла:
PDF с изображениями
Добавлен:
20/11/2025 15:34
Скачиваний:
4
Размер файла:
2.18 Мб
  • ГОСТ 32414-2013, страница 1 страница 1
  • ГОСТ 32414-2013, страница 2 страница 2
  • ГОСТ 32414-2013, страница 3 страница 3
  • ГОСТ 32414-2013, страница 4 страница 4
  • ГОСТ 32414-2013, страница 5 страница 5
  • ГОСТ 32414-2013, страница 6 страница 6
  • ГОСТ 32414-2013, страница 7 страница 7
  • ГОСТ 32414-2013, страница 8 страница 8
  • ГОСТ 32414-2013, страница 9 страница 9
  • ГОСТ 32414-2013, страница 10 страница 10
  • ГОСТ 32414-2013, страница 11 страница 11
  • ГОСТ 32414-2013, страница 12 страница 12
  • ГОСТ 32414-2013, страница 13 страница 13
  • ГОСТ 32414-2013, страница 14 страница 14
  • ГОСТ 32414-2013, страница 15 страница 15
  • ГОСТ 32414-2013, страница 16 страница 16
  • ГОСТ 32414-2013, страница 17 страница 17
  • ГОСТ 32414-2013, страница 18 страница 18
  • ГОСТ 32414-2013, страница 19 страница 19
  • ГОСТ 32414-2013, страница 20 страница 20
  • ГОСТ 32414-2013, страница 21 страница 21
  • ГОСТ 32414-2013, страница 22 страница 22
  • ГОСТ 32414-2013, страница 23 страница 23
  • ГОСТ 32414-2013, страница 24 страница 24
  • ГОСТ 32414-2013, страница 25 страница 25
  • ГОСТ 32414-2013, страница 26 страница 26
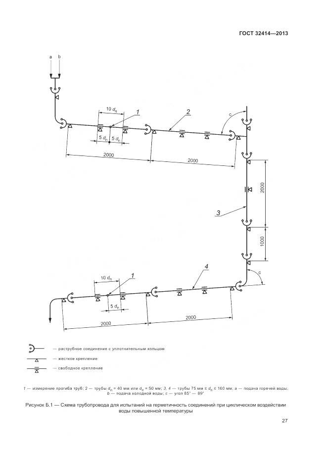
  • ГОСТ 32414-2013, страница 27 страница 27
  • ГОСТ 32414-2013, страница 28 страница 28
  • ГОСТ 32414-2013, страница 29 страница 29
  • ГОСТ 32414-2013, страница 30 страница 30
  • ГОСТ 32414-2013, страница 31 страница 31
  • ГОСТ 32414-2013, страница 32 страница 32