ГОСТ ISO 2478-2013 Изделия огнеупорные плотные. Определение остаточных изменений размеров при нагреве

Категории ГОСТ ISO 2478-2013 по ОКС:
Статус документа:
действует, введён в действие 01.01.2015
Название на английском языке:
Dense shaped refractory products. Determination of permanent change in dimensions on heating
Дата актуализации информации по стандарту:
17.09.2019, в 21:15 (более года назад)
Вид стандарта:
Стандарты на методы контроля
Дата начала действия ГОСТа:
2015-01-01
Дата последнего издания документа:
2014-10-01
Коды документа ГОСТ ISO 2478-2013:
Код КГС:
И29
Код ОКСТУ:
1509
Число страниц:
8
Назначение ГОСТ ISO 2478-2013:
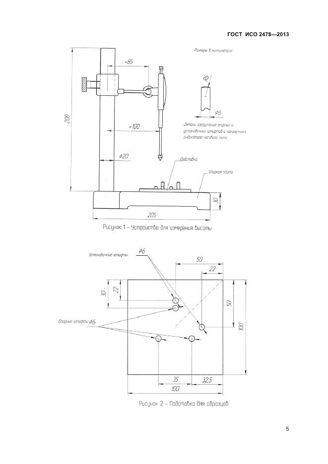
Настоящий стандарт устанавливает два метода определения остаточных изменений размеров при нагреве плотного огнеупорного изделия. Методы не распространяются на изделия, содержащие углерод
Документ разработан орг-ей:
Федеральное агентство по техническому регулированию и метрологии (Росстандарт)
Документ принят орг-ей:
Межгосударственный Совет по стандартизации метрологии и сертификации, протокол №63-П
Ключевые слова документа:
изделия огнеупорные плотные, нагрев, образец, остаточные изменения размеров
Нормативные ссылки, связанные с ГОСТ ISO 2478-2013:

Скачать ГОСТ ISO 2478-2013 вы можете в следующих версиях:

Дата добавления:
Тип файла:
Загрузок:
Размер:
23/01/2016 17:50
PDF с изображениями
0
0.39 Мб

Текст стандарта

  • ГОСТ ISO 2478-2013, страница 1 страница 1
  • ГОСТ ISO 2478-2013, страница 2 страница 2
  • ГОСТ ISO 2478-2013, страница 3 страница 3
  • ГОСТ ISO 2478-2013, страница 4 страница 4
  • ГОСТ ISO 2478-2013, страница 5 страница 5
  • ГОСТ ISO 2478-2013, страница 6 страница 6
  • ГОСТ ISO 2478-2013, страница 7 страница 7
  • ГОСТ ISO 2478-2013, страница 8 страница 8