ГОСТ Р ИСО 24335-2024 Покрытия напольные ламинированные. Метод определения устойчивости к ударным воздействиям

Категории ГОСТ Р ИСО 24335-2024 по ОКС:
Статус документа:
действует, введён в действие 01.12.2024
Название на английском языке:
Laminate floor coverings. Method for determining impact resistance
Дата актуализации информации по стандарту:
25.08.2025, в 15:52 (менее 3 месяцев назад)
Вид стандарта:
временно не известен
Дата начала действия ГОСТа:
2024-12-01
Число страниц:
16
Назначение ГОСТ Р ИСО 24335-2024:
не указано
Нормативные ссылки, связанные с ГОСТ Р ИСО 24335-2024:

Скачать ГОСТ Р ИСО 24335-2024 вы можете в следующих версиях:

В данный момент версий документа для скачивания не добавлено.

Мы стараемся пополнять базу документов еженедельно и из разных источников, в обозримом будущем версии для этого ГОСТа появятся.

Вы можете просмотреть online текст стандарта ГОСТ Р ИСО 24335-2024

Просмотреть текст ГОСТ Р ИСО 24335-2024

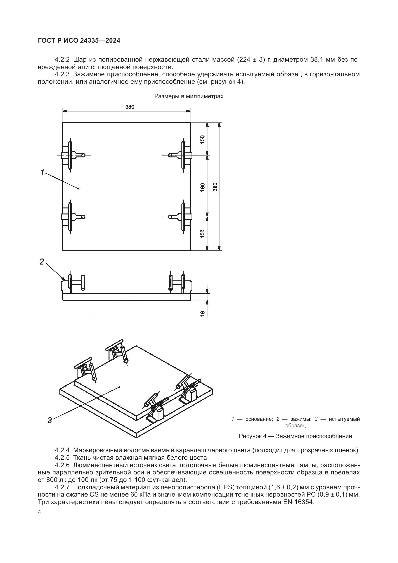
Текст стандарта

  • ГОСТ Р ИСО 24335-2024, страница 1 страница 1
  • ГОСТ Р ИСО 24335-2024, страница 2 страница 2
  • ГОСТ Р ИСО 24335-2024, страница 3 страница 3
  • ГОСТ Р ИСО 24335-2024, страница 4 страница 4
  • ГОСТ Р ИСО 24335-2024, страница 5 страница 5
  • ГОСТ Р ИСО 24335-2024, страница 6 страница 6
  • ГОСТ Р ИСО 24335-2024, страница 7 страница 7
  • ГОСТ Р ИСО 24335-2024, страница 8 страница 8
  • ГОСТ Р ИСО 24335-2024, страница 9 страница 9
  • ГОСТ Р ИСО 24335-2024, страница 10 страница 10
  • ГОСТ Р ИСО 24335-2024, страница 11 страница 11
  • ГОСТ Р ИСО 24335-2024, страница 12 страница 12
  • ГОСТ Р ИСО 24335-2024, страница 13 страница 13
  • ГОСТ Р ИСО 24335-2024, страница 14 страница 14
  • ГОСТ Р ИСО 24335-2024, страница 15 страница 15
  • ГОСТ Р ИСО 24335-2024, страница 16 страница 16