ГОСТ Р ИСО 15370-2014 Суда и морские технологии. Низкорасположенное освещение (НРО) на пассажирских судах. Расположение

Категории ГОСТ Р ИСО 15370-2014 по ОКС:
Статус документа:
действует, введён в действие 01.09.2014
Название на английском языке:
Ships and marine technology. Low-locating lighting (LLL) on passenger ships. Arrangement
Дата актуализации информации по стандарту:
11.08.2025, в 13:28 (менее 3 месяцев назад)
Вид стандарта:
временно не известен
Дата начала действия ГОСТа:
2014-09-01
Число страниц:
32
Назначение ГОСТ Р ИСО 15370-2014:
не указано
Нормативные ссылки, связанные с ГОСТ Р ИСО 15370-2014:

Скачать ГОСТ Р ИСО 15370-2014 вы можете в следующих версиях:

Дата добавления:
Тип файла:
Загрузок:
Размер:
23/01/2016 17:59
PDF с изображениями
0
1.27 Мб

Текст стандарта

  • ГОСТ Р ИСО 15370-2014, страница 1 страница 1
  • ГОСТ Р ИСО 15370-2014, страница 2 страница 2
  • ГОСТ Р ИСО 15370-2014, страница 3 страница 3
  • ГОСТ Р ИСО 15370-2014, страница 4 страница 4
  • ГОСТ Р ИСО 15370-2014, страница 5 страница 5
  • ГОСТ Р ИСО 15370-2014, страница 6 страница 6
  • ГОСТ Р ИСО 15370-2014, страница 7 страница 7
  • ГОСТ Р ИСО 15370-2014, страница 8 страница 8
  • ГОСТ Р ИСО 15370-2014, страница 9 страница 9
  • ГОСТ Р ИСО 15370-2014, страница 10 страница 10
  • ГОСТ Р ИСО 15370-2014, страница 11 страница 11
  • ГОСТ Р ИСО 15370-2014, страница 12 страница 12
  • ГОСТ Р ИСО 15370-2014, страница 13 страница 13
  • ГОСТ Р ИСО 15370-2014, страница 14 страница 14
  • ГОСТ Р ИСО 15370-2014, страница 15 страница 15
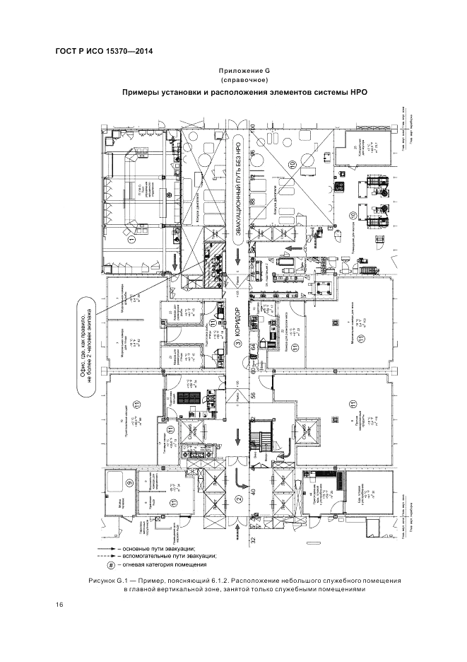
  • ГОСТ Р ИСО 15370-2014, страница 16 страница 16
  • ГОСТ Р ИСО 15370-2014, страница 17 страница 17
  • ГОСТ Р ИСО 15370-2014, страница 18 страница 18
  • ГОСТ Р ИСО 15370-2014, страница 19 страница 19
  • ГОСТ Р ИСО 15370-2014, страница 20 страница 20
  • ГОСТ Р ИСО 15370-2014, страница 21 страница 21
  • ГОСТ Р ИСО 15370-2014, страница 22 страница 22
  • ГОСТ Р ИСО 15370-2014, страница 23 страница 23
  • ГОСТ Р ИСО 15370-2014, страница 24 страница 24
  • ГОСТ Р ИСО 15370-2014, страница 25 страница 25
  • ГОСТ Р ИСО 15370-2014, страница 26 страница 26
  • ГОСТ Р ИСО 15370-2014, страница 27 страница 27
  • ГОСТ Р ИСО 15370-2014, страница 28 страница 28
  • ГОСТ Р ИСО 15370-2014, страница 29 страница 29
  • ГОСТ Р ИСО 15370-2014, страница 30 страница 30
  • ГОСТ Р ИСО 15370-2014, страница 31 страница 31
  • ГОСТ Р ИСО 15370-2014, страница 32 страница 32